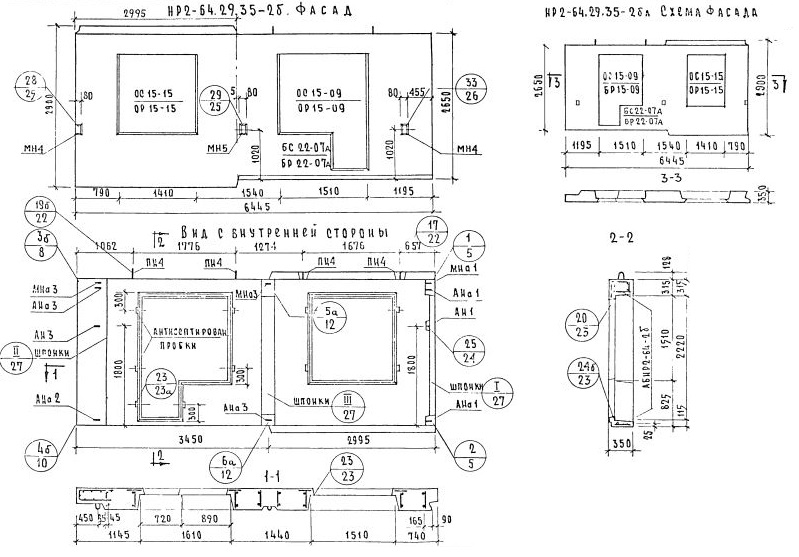
НР2-64.29.35-2бл

Чертеж изделия:
Чертеж НР2-64.29.35-2бл
Характеристики изделия:
ПараметрЗначение
Длина6445 мм
Ширина350 мм
Высота2900 мм
Масса6110 кг
Нормативный документСерия 1.132-1

НР2-64.29.35-2бл   Наружная стеновая панель рядовая по Серии 1.132-1.